Skyline Studio presents…

Modern Chateau

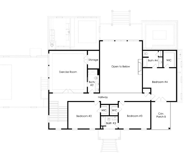
5,420 sqft heated | 7,233 sqft under roof

Modern Georgian

Plan Design, CAD work, Renderings, Finish Selections